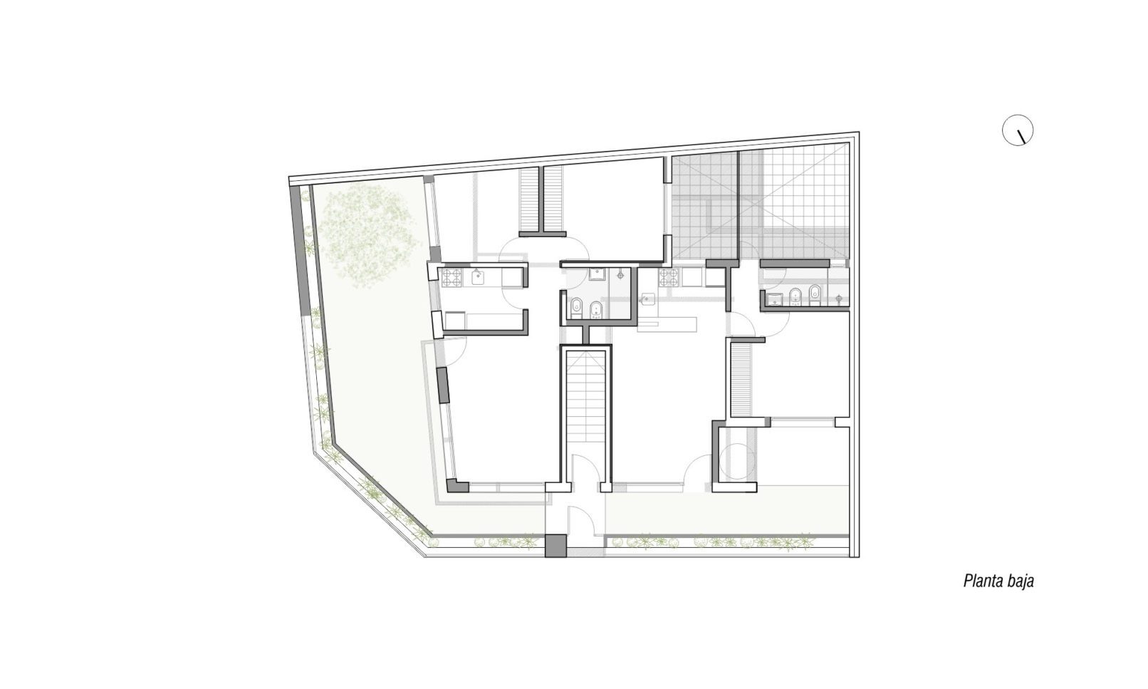
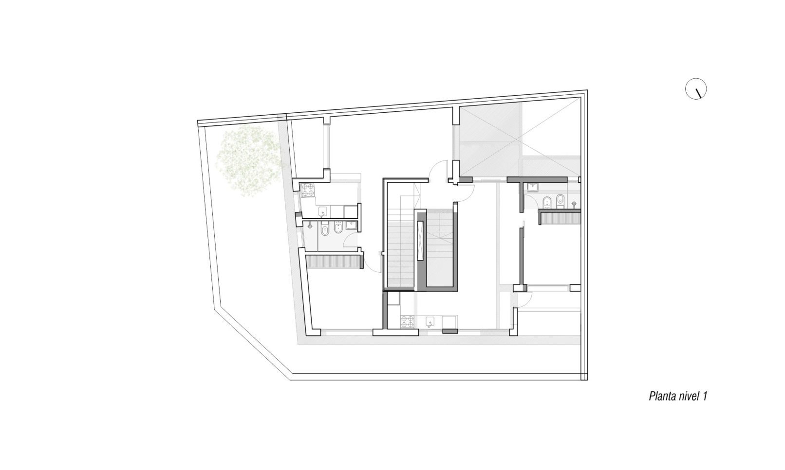
Viviendas La Blanqueada
6 viviendas en PH
Ubicación:
- La Blanqueada, Montevideo, Uruguay
Año de ejecución:
- 2013-2014
Equipo de proyecto:
- KUNST_ Arq. Lorena Castelli & Arq. María Lezica + Arq. Santiago Gelós.
Imagen:
- Sebastián Castagnet
Fotos:
- María Lezica
Área:
- 350 m2














