Chromaflo
Planta de producción
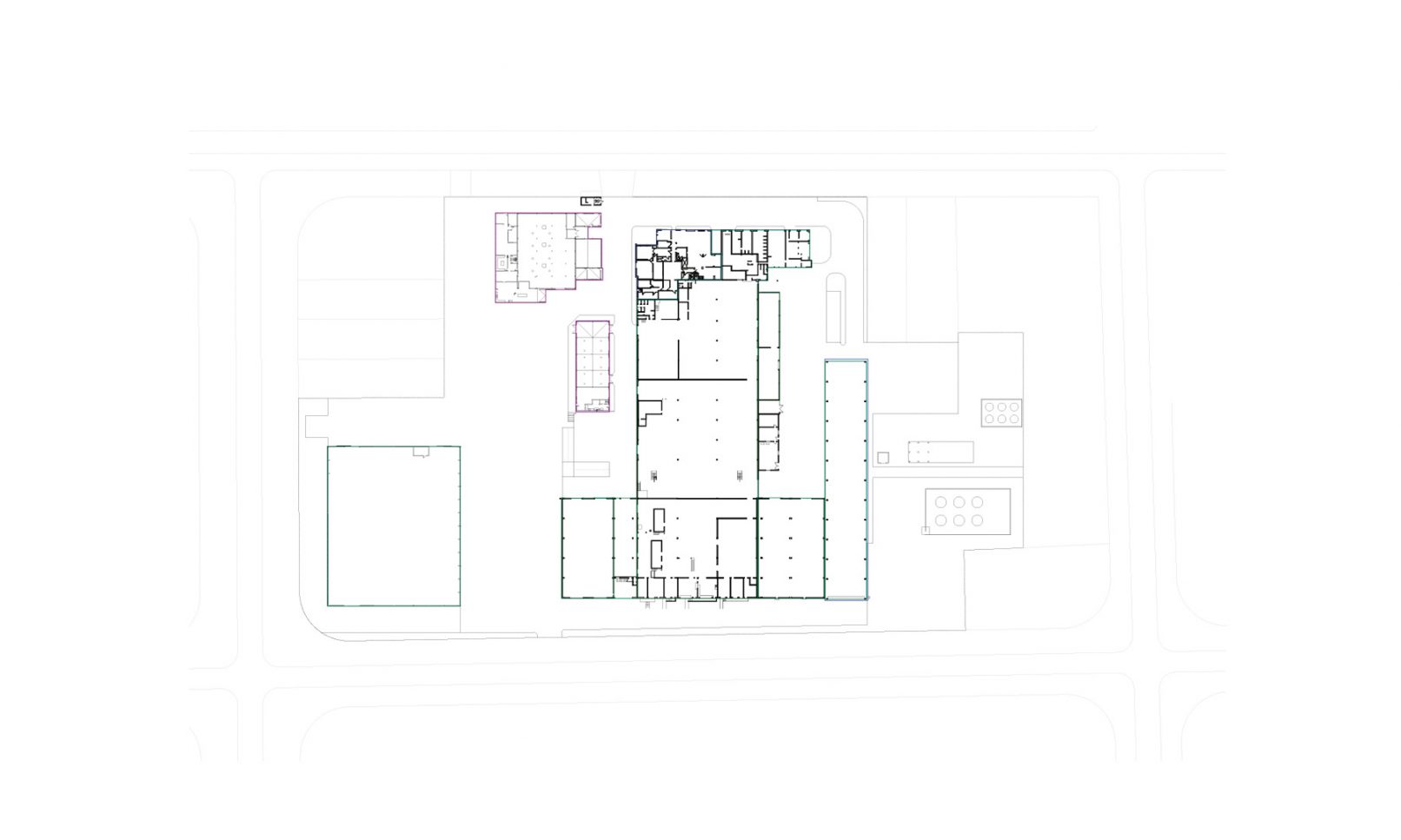
Se interviene en una antigua planta industrial de producción de pigmentos que estaba cerrada hace más de dos años. Se reformaron 330 m2 de oficinas, se proyectó una plaza de estacionamientos, varios espacios verdes de esparcimiento, se hizo un proyecto de 150 m2 para el sector de laboratorio, se reformaron los servicios (vestuarios, cocina, baños y comedor) de acuerdo a la normativa municipal vigente, y se hizo un mantenimiento a todo el sector de la planta de producción y depósitos, ya que contaba con varias patologías por falta de mantenimiento y estar en desuso.
Ubicación:
- Montevideo, Uruguay
Programa:
- Planta de producción de pigmentos
Años de ejecución:
- 2019 - 2020
Área:
- 9215m²
Sistema constructivo:
- Tradicional
Equipo de proyecto:
- Arq. Lorena Castelli, Arq. María Lezica y Arq. Patricio Vizintín
Colaborador:
- Arq. Carlos Rey
Equipo asesor:
- Agrimensura:Ing. Agrimensor Daniel Boix, Sanitaria: Ing. Hidraúlico Martin Bertocchi, Ing.ambiental: Ing. CivilGustavo Balbi, M. Sc. Ing. Carolina Bettinelli, M. Sc. Ing. Andrea Pitzer; Proyectovial: Ing.Civil Diego Gagliardi, Estudio Socio Económico: Lic. Soc. José Luis Costa, Estudio Hidraúlico: Ing. Civil H/AMatías Santa Cruz
Fotos:
- Andrea Sellanes














