Club de la Papa Frita
Local de comida rápida
Este local es el primer local de fast food de una conocida empresa del rubro gastronómico. El desafío consistió en primer lugar, lograr una imagen de marca que defina una identidad, y por otro lado una imagen adecuada y potente que pudiera repetirse para poder generar una franquicia a nivel nacional.
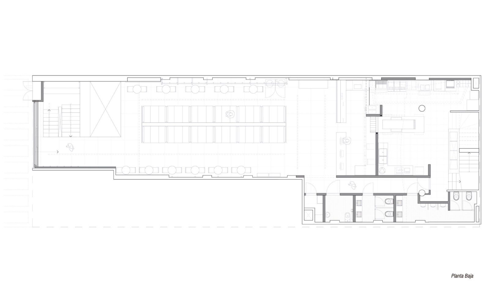
El local se ubica en la planta baja y subsuelo de un edificio de valor patrimonial en 18 de julio, por lo que su fachada deberá conservar sus preexistencias y a términos comerciales con una buena visibilidad en referencia a su entorno. Al interior, con una planta de proporciones alargadas, resuelve todos los requerimientos para su funcionamiento y propone una imagen contundente en toda su envolvente.
Ubicación:
- 18 de julio 1281, Montevideo, Uruguay
Año de ejecución:
- 2021-2022
Área:
- 600m2
Obra:
- Reforma
Equipo de proyecto:
- Arq. Lorena Castelli, Arq. María Lezica, Arq. Carlos Rey, Arq. Natalia Álvarez
Asesores:
- Sanitario: Federico Estoup, Estructura: Ing. Martin Rajchman, Proyecto contra incendios: Arq. Brahian Fagúndez, Inst. Mecánicas: Ing. Rubén Martínez
Fotos:
- Andrea Sellanes












