GUAPA
7 viviendas en PH
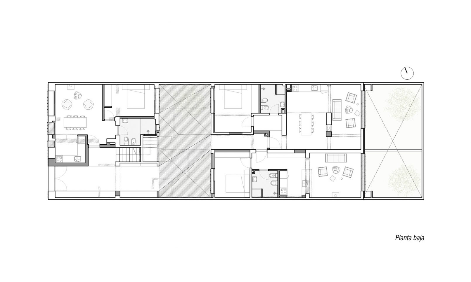
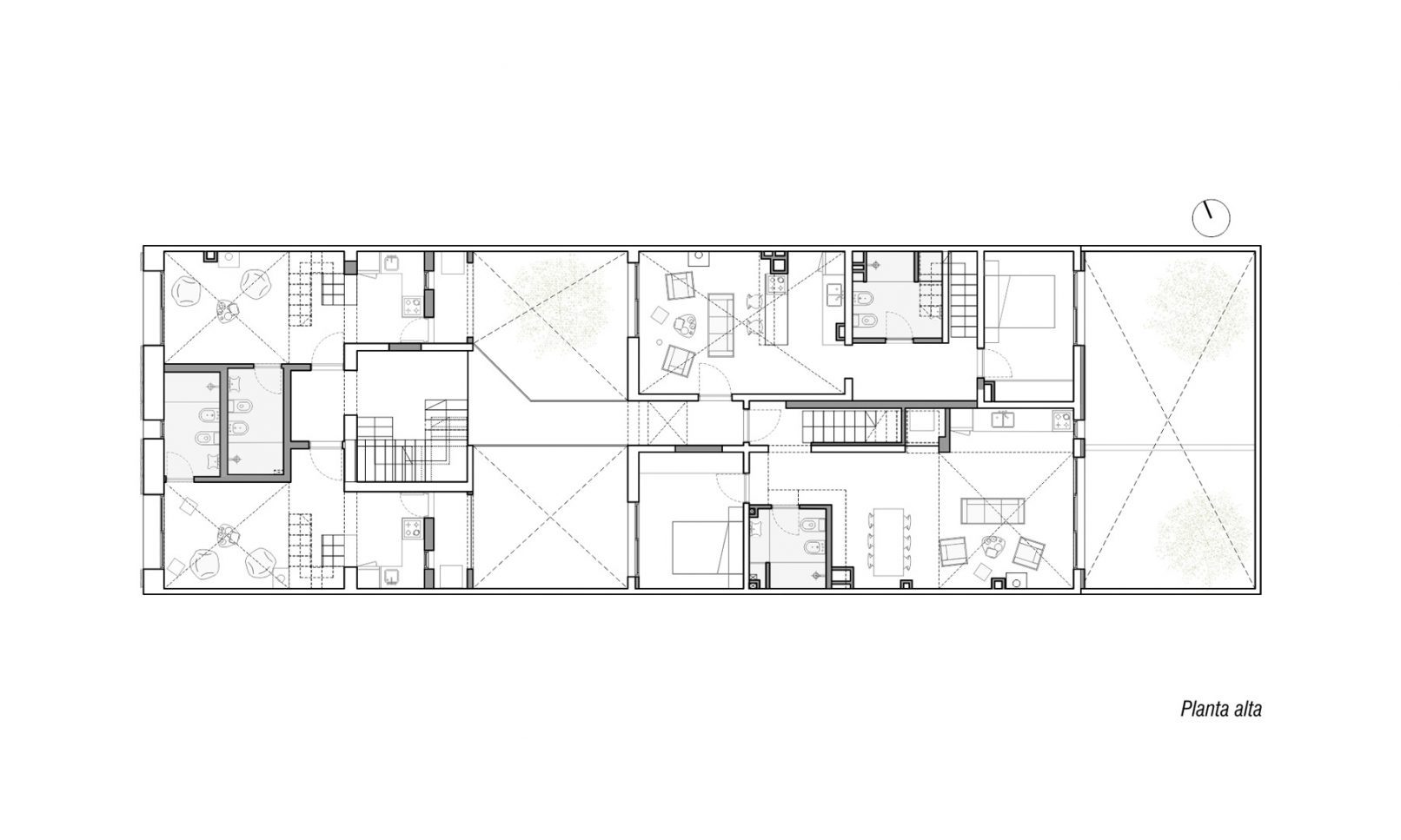
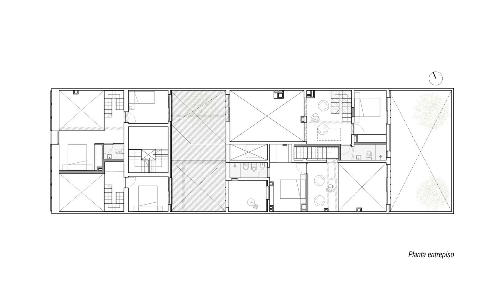
Se interviene una vivienda de 1917 que tiene un ancho de frente de 9m. Ésta ya había sido reformada en 1946 no preservando su fachada original. Se fracciona el padrón y se hacen 7 unidades de 1 y 2 dormitorios, algunas dúplex, generando espacios de doble altura en algunas oportunidades, buscando una mayor riqueza espacial. Se genera un patio intermedio y uno posterior permitiendo que varias unidades sean bi-orientadas. En la fachada se propone un revestimiento con la placa de GRC, con una trama de rayas a 45, generando un ritmo con su despiezo, que se recupera con las rejas de protección.
Ubicación:
- Guaná y Paullier, Barrio Cordón, Montevideo, Uruguay
Año de ejecución:
- 2016-2018
Área:
- 550 m2
Equipo de proyecto:
- Arq. Lorena Castelli, Arq. María Lezica, Arq. Lucas Mateo
Colaboradores:
- Massimiliano Fraga, Ignacio Peyró, Aleka Ramírez.
Asesores:
- Estructura: Magnone-Pollio, Sanitaria: Ing. Martín Bertocchi, Agrimensura: Ing Agr. María Noel García
Imagen:
- Lucas Mateo
Fotos:
- Nacho Correa
















