Homini
Oficinas y depósitos
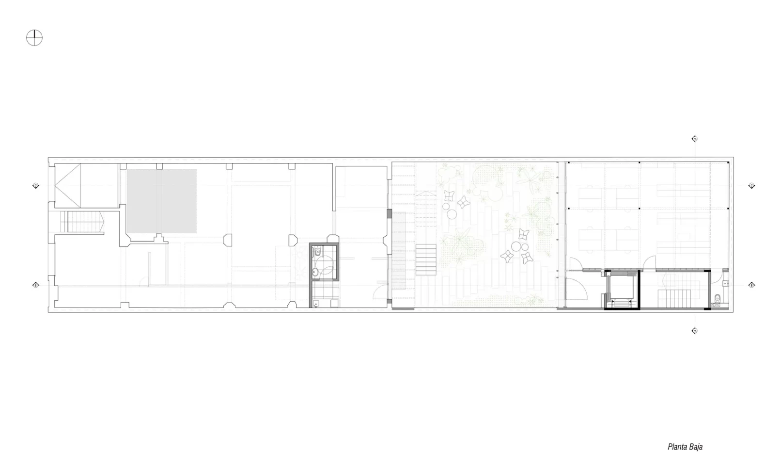
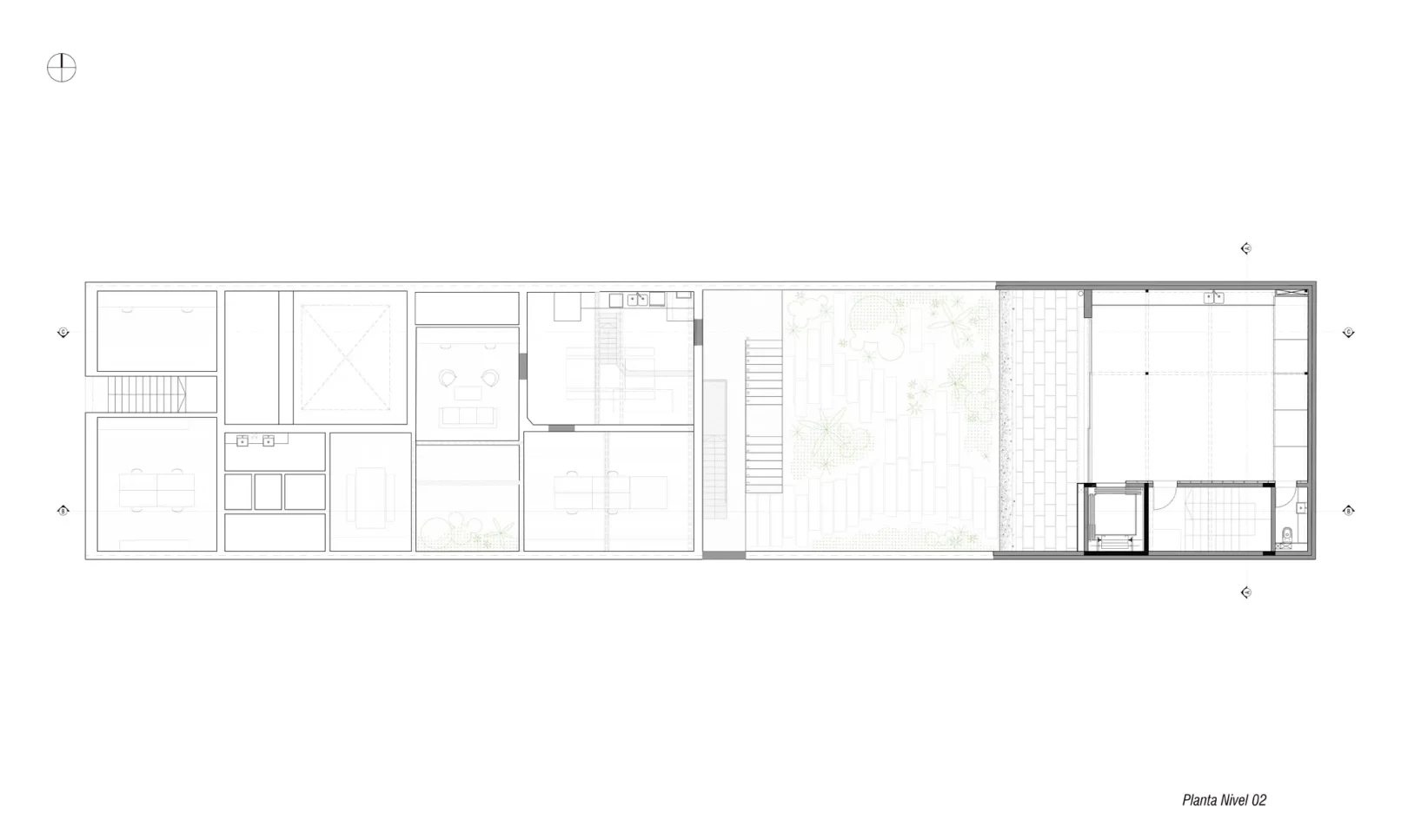
Se trata de un programa destinado a oficinas y depósito de HÓMINI, una marca dedicada al diseño y comercialización de accesorios de moda cuya impronta despojada, contemporánea y femenina definen una marcada identidad. El proyecto se implanta en un padrón que contiene una antigua casa con un alto interés patrimonial, con dos niveles al frente y un gran terreno libre hacia el centro de manzana. El edificio plantea apropiarse de la vivienda existente a través de intervenciones muy respetuosas que no solo preservan la esencia arquitectónica del inmueble, sino que la potencia, valorizando tanto sus elementos formales como su especialidad.
En este sentido, se establece un diálogo entre tradición y contemporaneidad. Se abren espacios hacia el exterior a través de patios que generan una relación más fluida con el entorno y maximizan la luz natural, al mismo tiempo que se crean contrastes de forma y materialidad que resaltan los elementos arquitectónicos originales de la vivienda. En la parte posterior del predio se implanta un nuevo volumen que plantea una relación visual y espacial con la vivienda existente a través de un amplio patio central, con una fuerte presencia de vegetación que crece de manera libre, formando senderos sinuosos que serpentean entre ambos edificios, favoreciendo una circulación fluida y un contacto directo con la naturaleza circundante.
Ambos volúmenes dialogan mediante un lenguaje común de fachada, que se materializa en una piel semitranslúcida, concebida como un elemento de protección tanto física como visual para ambos edificios. Esta envolvente de ambos volúmenes juega con diferentes densidades de aperturas, que varían en tamaño y disposición, modulando la privacidad y regulando la relación con el entorno. Este juego de aperturas no solo otorga dinamismo a la fachada, sino que también transforma la percepción del espacio, generando un continuo cambio en la luz y la sombra a lo largo del día, lo que acentúa la interacción entre los volúmenes y el paisaje circundante.
Año de construcción:
- 2025
Área:
- 733 m2
Equipo de proyecto:
- Arqs. Deborah y Dinorah Kaiser + MOLA KUNST: Arq. Natalia Álvarez, Arq. Lorena Castelli y Arq. María Lezica
Asesores:
- Estructura: Ing. Martin Rajchman, Sanitaria: AI estudio, Bomberos: Arq. Brahian Fagúndez
Imágenes:
- Camilo Méndez











