Laboratorio Arcos
Laboratorio y oficinas
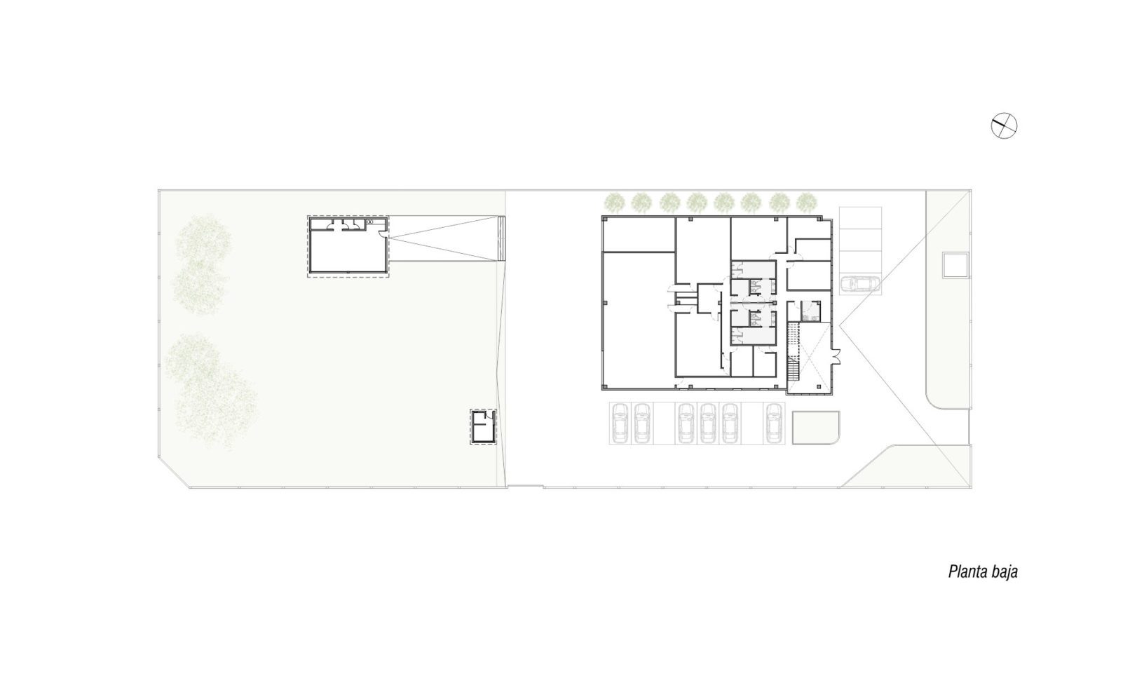
El proyecto del laboratorio, responde a una volumetría compacta en dos niveles. En planta baja funciona el laboratorio, y en la planta alta se encuentra todo el sector de oficinas. El sistema constructivo propuesto es una estructura de pilares y vigas de hormigón prefabricado, con placas de hormigón prefabricadas en un sector, y el resto de la envolvente es un courtain Wall.
Ubicación:
- Ruta Interbalnearia, Montevideo, Uruguay
Año de ejecución:
- 2014
Equipo de proyecto:
- Arq. Santiago Gelos, Arq. Lorena Castelli, Arq. María Lezica
Imagen:
- Sebastián Castagnet
Área:
- 1150 m2
Asesores:
- Sanitaria: Ing. Hid. Martín Bertocchi.







