Laboratorio Lazar
Laboratorio
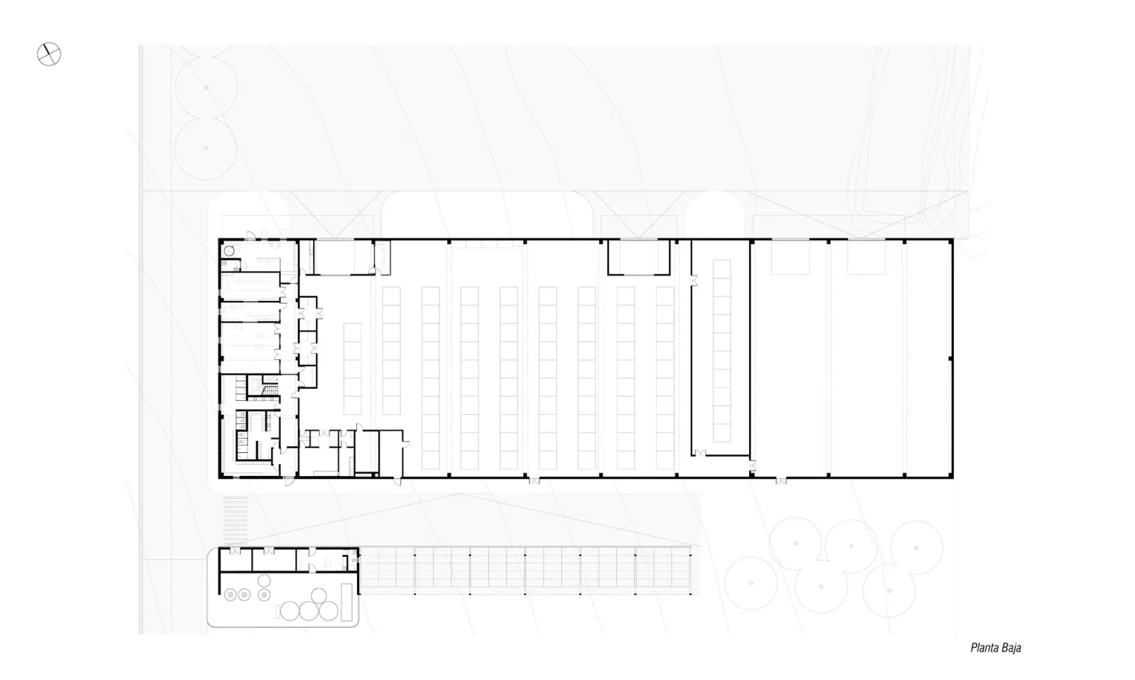
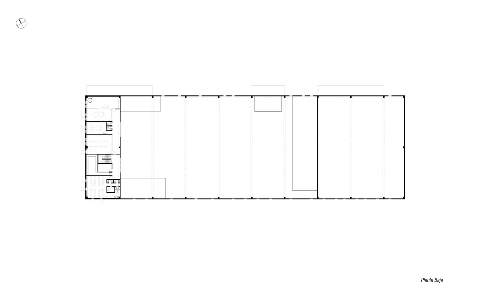
Este proyecto se diseña buscando jerarquizar y potenciar al sistema constructivo, que en esta ocasión es el hormigón premoldeado. Es así que de acuerdo a los requerimientos del cliente se proyecta esta nave de 30 metros de luz libre por 100 metros de desarrollo, con un entrepiso de 600 metros cuadrados con programa de oficinas, producción y depósito. En la fachada se propone jugar con la combinación de placas de hormigón lisas y texturadas, que se van alternando logrando generar cierto dinamismo y diseño.
Pilares, vigas delta, vigas canal U, correas, placas lisas y texturadas, entrepiso de losa hueca y escalera son todos los componentes prefabricados que integran la propuesta. Pensar el proyecto desde el sistema constructivo prefabricado nos permitió que el diseño de la propuesta se pensara desde su materialidad, buscando así exacerbar el hormigón y potenciarlo.
Ubicación
- Canelones, Uruguay
Año de ejecución
- En ejecución 2023- 2025
Área
- 3600 m2
Arquitecta(s) a cargo
- Arq. Emilia Boschi, Arq. Lorena Castelli y Arq. María Lezica
Imágenes
- Bruno Ramírez
Empresa constructora
- ELDECOR
Hormigón premoldeado
- ASTORI















