Oficinas Requena
Oficinas
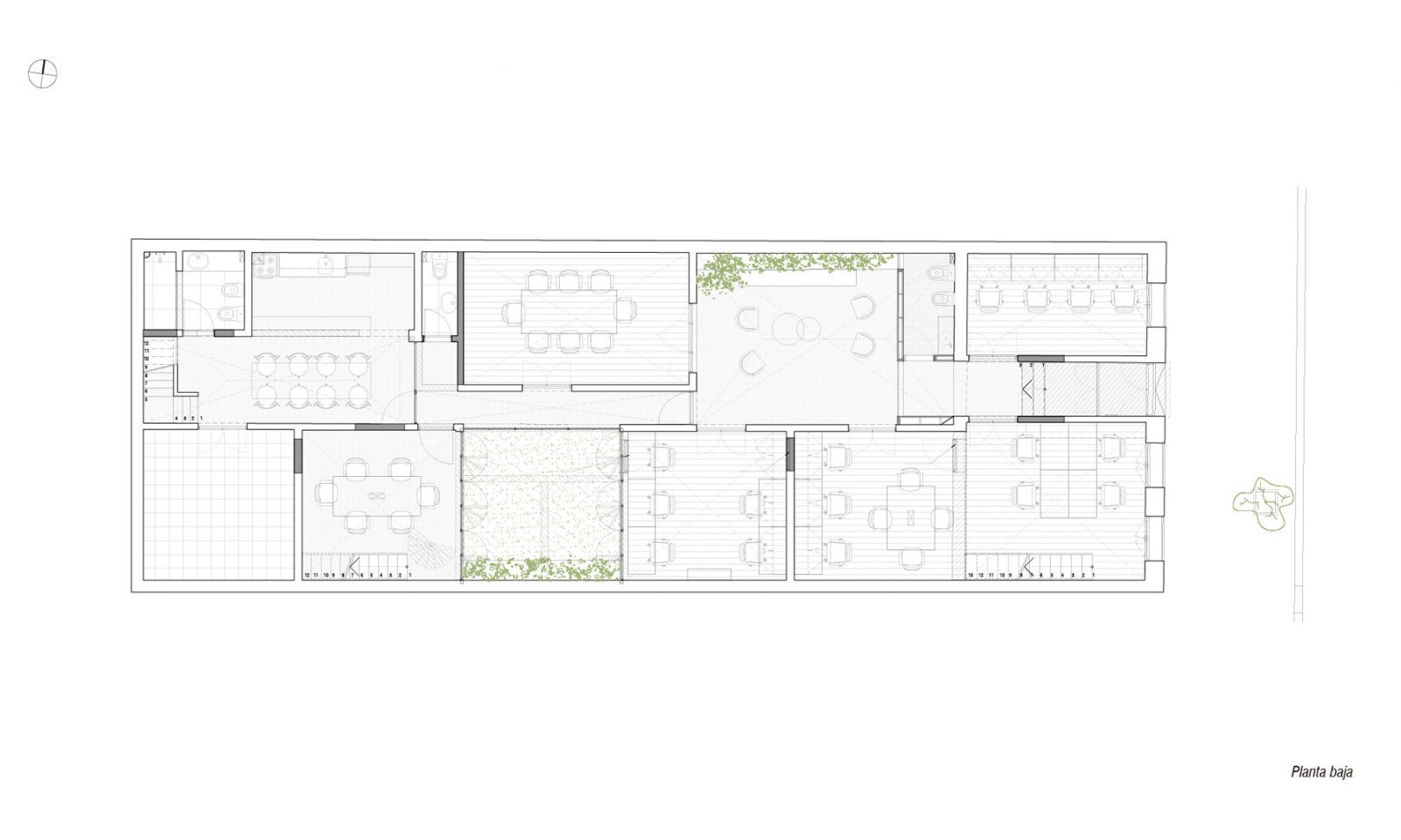
Las oficinas surgen del reciclaje de una casa patio de principios del siglo XX. El programa trata de apropiarse de la antigua vivienda con la menor cantidad de modificaciones espaciales, buscando recuperar ciertos aspectos fundamentales. Las intervenciones planteadas surgen por la necesidad de mejorar las condiciones espaciales de las oficinas, destacándose la apertura de un patio interior y la unión de dos módulos de habitaciones.
Mención en Intervención en Arquitectura existente en Concurso de Obra realizada 2023
por la Sociedad de Arquitectos del Uruguay.
Ubicación:
- Montevideo, Uruguay
Programa:
- Oficinas
Año de ejecución:
- 2019 - 2020
Área:
- 260 m²
Sistema constructivo:
- Tradicional
Equipo de proyecto:
- Arq. Lorena Castelli, Arq. María Lezica y Arq.Patricio Vizintín
Colaboradores:
- María José Milans, Massimiliano Fraga y Carlos Rey
Asesores:
- Sanitario: Federico Stoup, Estructura: Ing. Martin Rajchman, Proyecto contra incendios: Arq. Aliné González
Fotos:
- Marcos Guiponi














