Pomelo
Restaurante
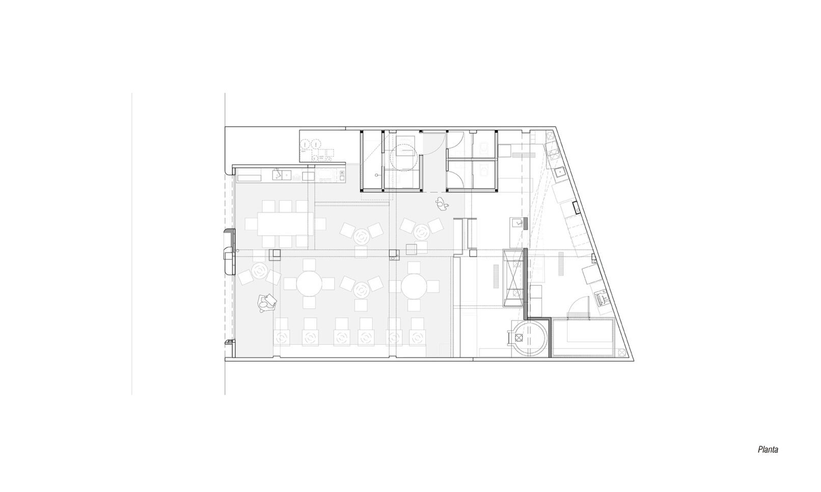
En este local gastronómico se libera el espacio central donde se ubica el salón, y se colocan los servicios en los límites. En el sector del fondo se encuentra la zona de producción, vinculándose con el espacio central a través de una gran barra. El vínculo con el exterior es a través de grandes ventanales que permiten generar una gran apertura.
Ubicación
- Miñones, Punta Carretas, Montevideo, Uruguay
Año de ejecución
- 2022
Área
- 150 m2
Equipo de proyecto
- Arq. Lorena Castelli, Arq. María Lezica, Arq. Natalia Álvarez
Proyecto
- Reforma
Asesores
- Sanitario: Federico Stoup, Estructura: Ing. Martin Rajchman
Fotos
- Marcos Guiponi










