Viviendas PH Belvedere
6 viviendas en PH
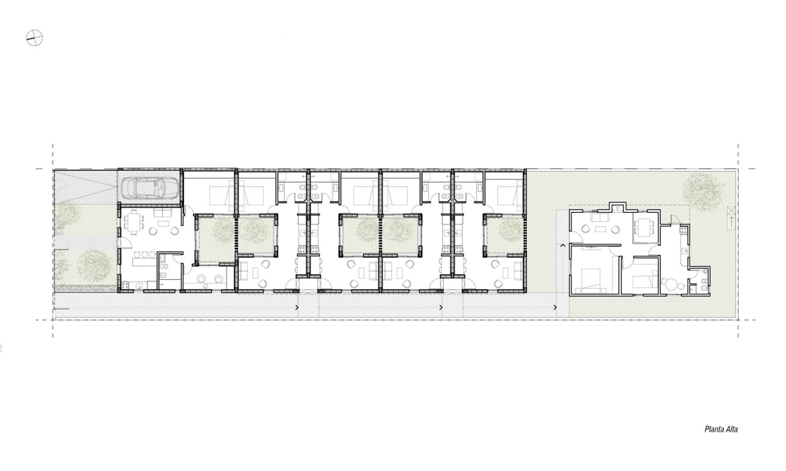
Se proyectan 5 viviendas económicas en propiedad horizontal y se reforma una existente en un predio que tiene 11 m de frente y más de 50 m de profundidad. Las viviendas se diseñan utilizando el bloque como módulo para generar el menor desperdicio posible. Cada tipología cuenta con un patio central que permite por un lado que la casa se viva desde ese lugar y por otro generar buenas condiciones de iluminación y ventilación.
Ubicación:
- Belvedere, Montevideo, Uruguay
Programa:
- 6 viviendas en propiedad horizontal
Años de ejecución:
- 2018-2019
Área:
- 250 m2
Sistema constructivo:
- muros de bloque de hormigón vibrado con un emplacado en yeso interior y cubierta de isopanel
Equipo de proyecto:
- Arq. Lorena Castelli, Arq. María Lezica y Arq. Patricio Vizintín
Colaborador:
- María José Milans y Massimiliano Fraga
Asesores:
- Agrimensura: Ing. Agrimensor Daniel Boix, Sanitario: Federico Stoup, Estructura: Ing. Martin Rajchman, Proyecto contra incendios: Arq. Aliné González
Fotos:
- Arq. María Lezica



















