Mercado Fast Food
Locales de comida rápida
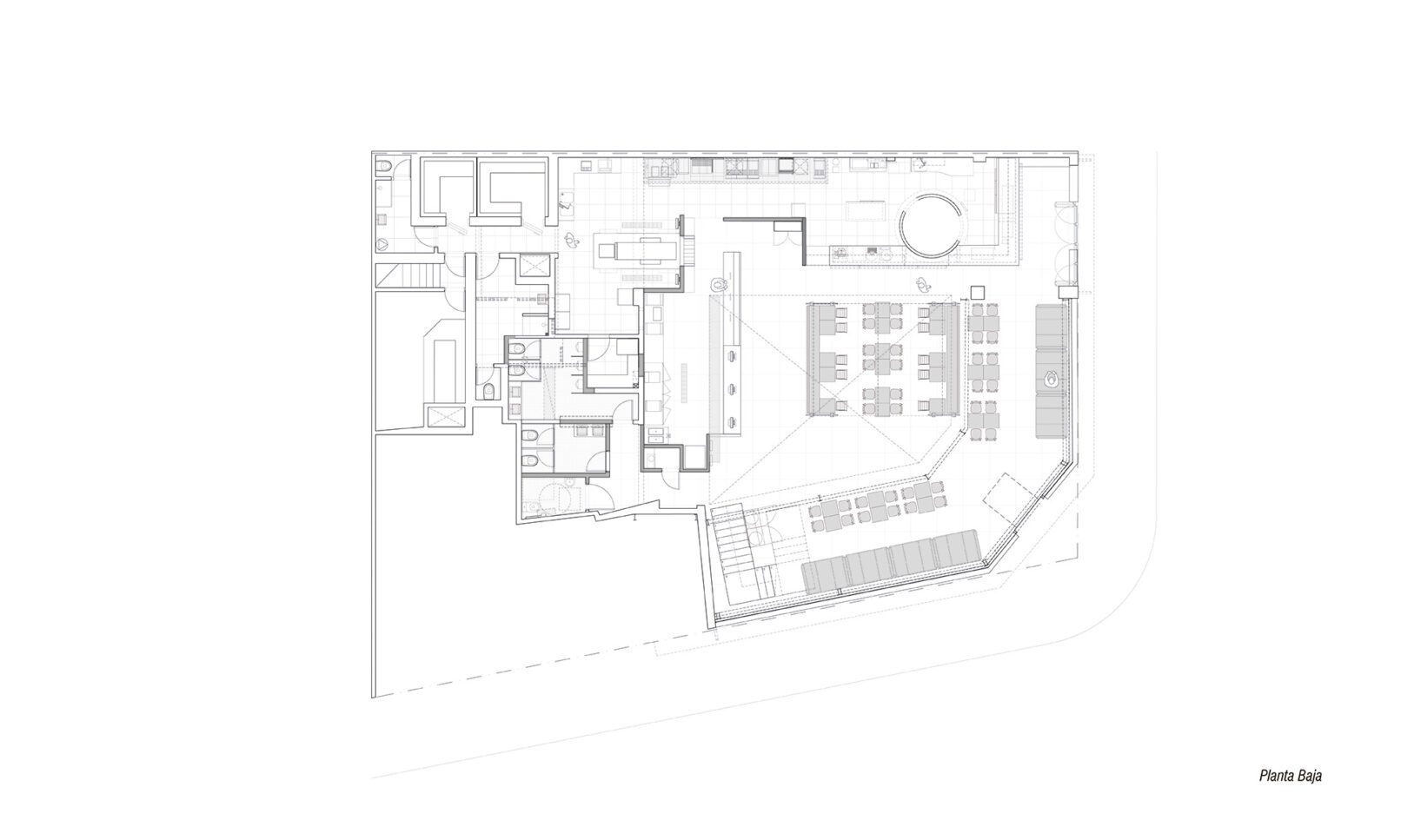
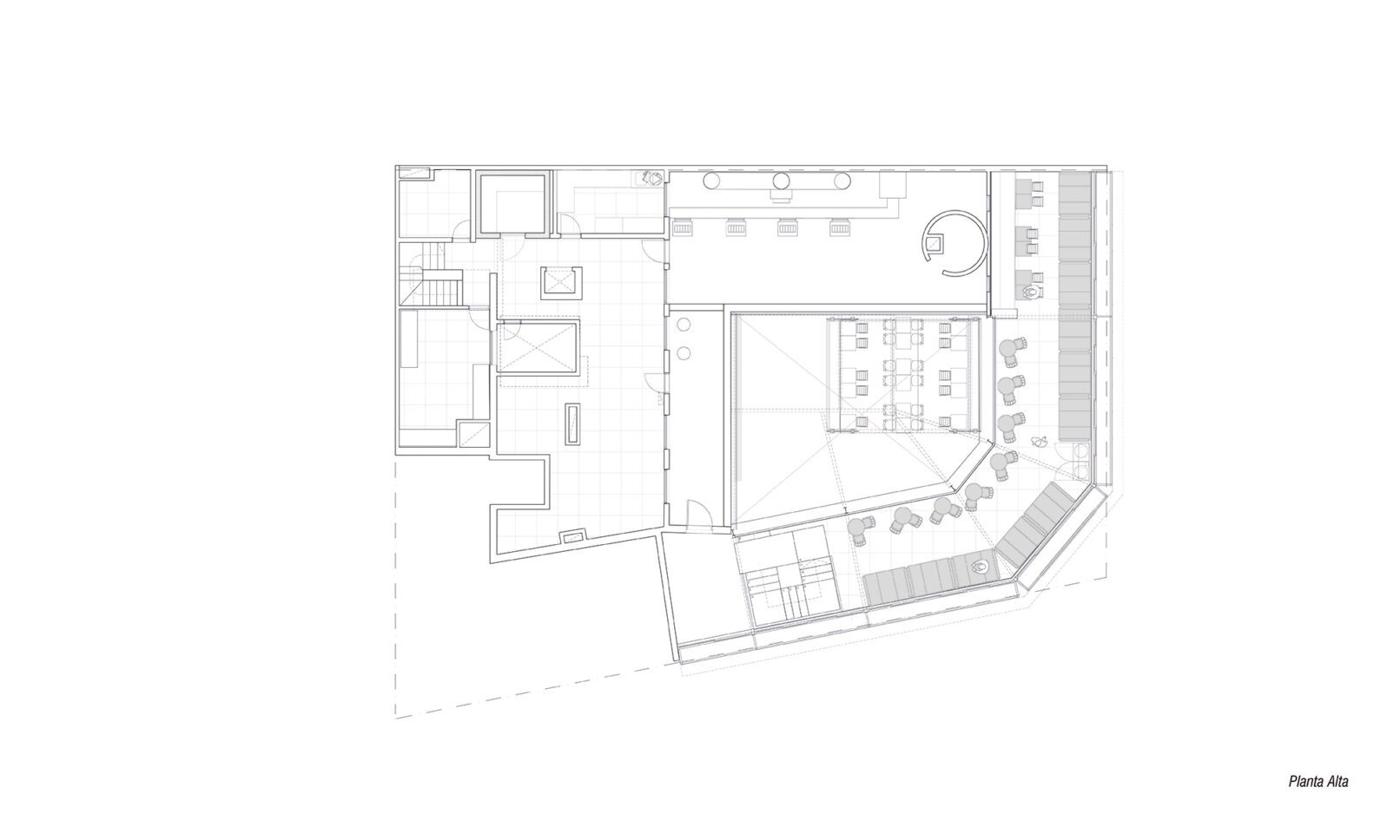
Este mercado se ubica en una esquina, donde anteriormente funcionada una cadena gastronómica de relevancia. Esto provoca un desafío en generar una nueva imagen tanto en su interior como en su exterior. En la propuesta conviven dos locales, uno de fast food del club de la papa frita y la pizzería Kentuky, ambos con una imagen ya preestablecida que en su conjunto logran un interior muy potente. Hacia su exterior se plantea un cerramiento metálico que uniformiza la imagen de la fachada preexistente, exacerbando su condición urbana de esquina.
Ubicación
- 8 de octubre y Comercio, Montevideo, Uruguay
Año de ejecución
- 2021-2022
Área
- 600 m2
Equipo de proyecto
- Arq. Lorena Castelli, Arq. María Lezica, Arq. Natalia Alvarez
Constructora
- TECTUY
Asesores
- Sanitario: Federico Estoup, Estructura: Ing. Martín Rajchman
Fotos
- Marcos Guiponi










